16 photos
Description
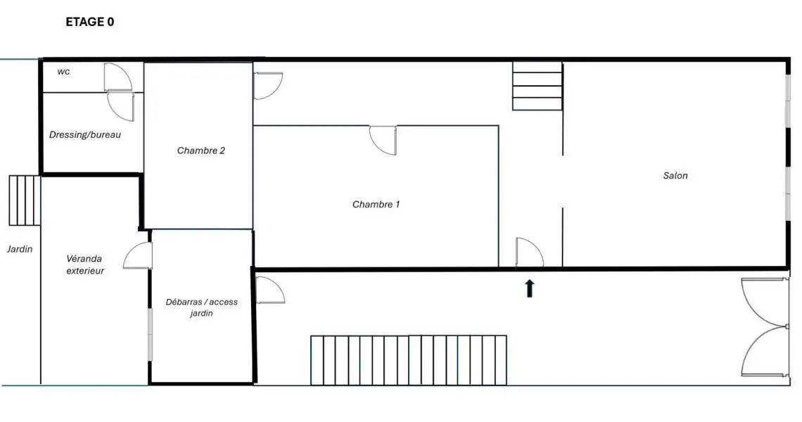
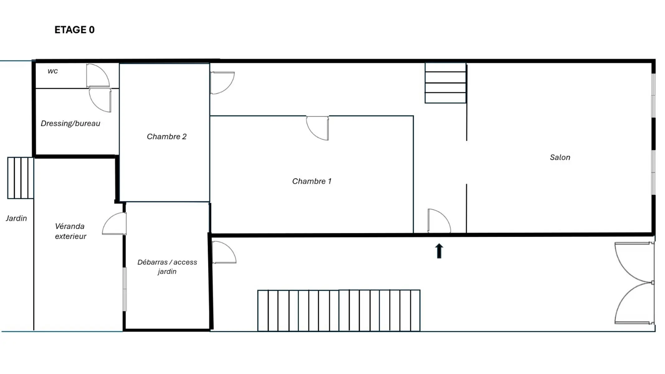
Ixelles, Chaussée de Wavre, au coeur du quartier européen, à proximité des commerces et des transports en communs, venez découvrir ce beau souplex de 138m2 brut comprenant :
Au rez-de-chaussée : Un vaste séjour de +- 30m2 , deux chambres de +-14m2 et +-13m2, un bureau et un grand jardin.
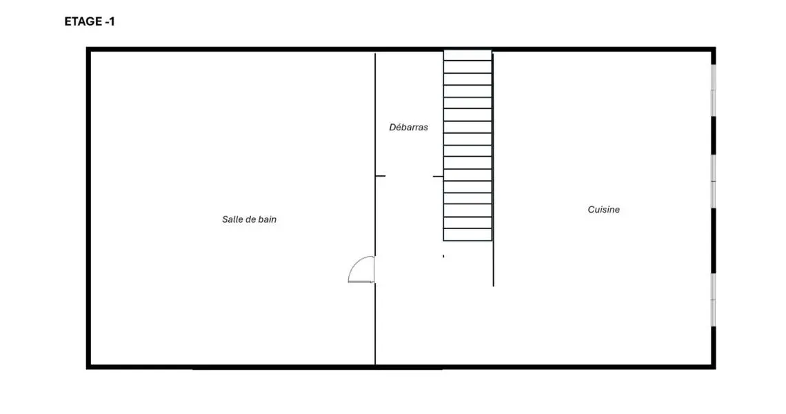
Au sous-sol : Une cuisine séparé équipée et une salle de bains..
Charges de 50 euros/mois pour l'entretien des communs.
Disponible immédiatement.
A visiter !
Aspects financiers
- Charges locataire : 50 €
- Garantie locative (nombre de mois) : 2
Intérieur
- Surface bâtie : 140 m²
- Cuisine : Oui
- Buanderie : Oui
- Chauffage (ind/coll) : individuel
- Nbre de toilette(s) : 1
- Nombre de sdd : 1
- Bureau : 6 m²
- Chambre 1 : 13 m²
- Chambre 2 : 14 m²
- Ascenseur : Non
- Double vitrage : isol. thermique et acoustique
- Largeur de façade : 8
- électricité : Oui
- Salle de séjour : 30 m²
- Cuisine : 21 m²
- Chauffage : gaz
- Type de cuisine : séparée
- Sdb : bain
- Télévision par cable : Oui
- Gaz : Oui
- Parlophone : Oui
- Câbles téléphoniques : Oui
- Eau : Oui
Extérieur
- Nombre d'étages : 3
- Châssis : pvc
Terrain et environs
- Type d'environnement : résidentiel
- Type d'environnement 2 : calme
- Exposition de la façade avant : sud
- Magasins : Oui
- Ecoles : Oui
- Transports en commun : Oui
- Centre sportif : Oui
- Risque d'inondation : pas situé en zone inondable
Certificats / Attestations
- Certificat d'électricité : non
Energie
- Label PEB : F
- PEB E-SPEC (kwh/m²/an) : 311
- Emission CO2 : 62
- E total : 43021 kWh/an
- PEB code unique : 20250117-0000701760-01-6
- PEB valide jusqu'au : 01/17/2035 00:00
- Date du PEB : 01/17/2025 00:00















