PEB
Plan du rez-de-chaussée
Plan du sous-sol
Plan du 1er étage
Plan du 2ème étage
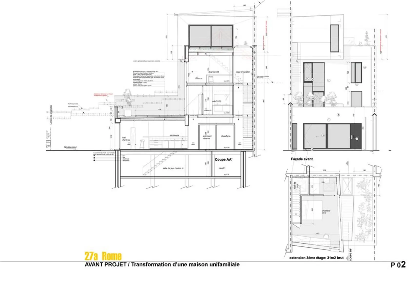
Situation projetée pour le rehaussement
Situation projetée pour le rehaussement 2
Quotités
Description
Saint-Gilles - Rue de Rome 27,
à proximité immédiate du Parvis de Saint-Gilles, du parc Pierre Paulus, des commerces et transports en communs, superbe arrière maison construite en 2011, calme, lumineuse et offrant :
au rez : cour de +/-60m2, cuisine US super équipée, vaste séjour/salle à manger, toilette.
Au 1er : grande Master bedroom de +/- 40m2 avec salle de bains, dressing et un accès à une magnifique terrasse de +/-45m2.
au 2ème : 2 belles chambres de +/-15m2 avec mezzanine et une salle de bains.
Au Sous-Sol : buanderie, cave, et un grand espace de +/-60m2 pouvant servir d'atelier, bureau,...
Possibilité de Construire un étage supplémentaire moyennant permis.
PEB : C.
Actuellement loué.
Charges de 50€/mois pour les communs
A visiter sans tarder !
Aspects financiers
- Charges locataire : 50 €
- Loué : Oui
- Destination bâtiment : privé - habitation
- Revenu cadastral (€) : 1659 €
- Affectation urbanistique : zone d'habitat
Intérieur
- Surface bâtie : 250 m²
- Cuisine : Oui
- Buanderie : Oui
- Chauffage (ind/coll) : individuel
- Nbre de toilette(s) : 3
- Nombre de sdd : 2
- Bureau : 10 m²
- Chambre 1 : 40 m²
- Chambre 2 : 15 m²
- Chambre 3 : 15 m²
- Ascenseur : Non
- Double vitrage : Oui
- Largeur de façade : 8
- électricité : Oui
- égouts : Oui
- Nbre de terrasse(s) : 1
- Salle de séjour : 90 m²
- Chauffage : gaz
- Possibilité profession libérale : 70 m²
- Type de revêtement de sol : carrelages
- Type d'ascenseur : matériaux
- Orientation de la terrasse 1 : ouest
- Type de cuisine : amer. super-équipée
- Sdb : bain
- Télévision par cable : Oui
- Gaz : Oui
- Parlophone : Oui
- Câbles téléphoniques : Oui
- Eau : Oui
- Cave : Oui
Extérieur
- Année de construction : 2011
- Nombre d'étages : 2
- Châssis : pvc
- Surface de terrasse 1 : 45 m²
Terrain et environs
- Type d'environnement : calme
- Type d'environnement 2 : résidentiel
- Risque d'inondation : pas situé en zone inondable
Certificats / Attestations
- Certificat d'électricité : oui, conforme
Energie
- Label PEB : C
- PEB E-SPEC (kwh/m²/an) : 127
- Emission CO2 : 25




















